ユニテハウス

クリエイト礼文の注文・分譲住宅情報

×
#17 Japanese Modern

#17 Japanese Modern

山形県米沢市 モデルハウス

Environmoent

米沢市の中心地の北に位置するエリア。東側ほど近くには最上川が流れる。米沢の中心地には城下町の面影があちらこちらで見かけられるが、そこから少し離れたところになる。市役所や大型店舗があり、比較的新しい街並みを形成している。

Data

【坪数】
Site area / 252.21㎡(76.29坪)
Building area / 69.56㎡(21.04坪)
1st f loor area / 65.41㎡(19.79坪)
2nd f loor area / 69.56㎡(21.04坪)
Architectural area / 134.97㎡(40.83坪)
【間取り】
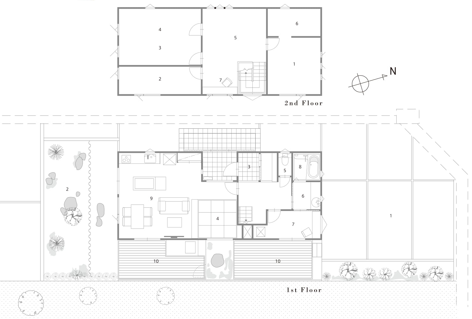
1st Floor / 1.Parking space 2.Garden 3.Entrance 4.Tatami Corner 5.Toilet 6.Sanitary room 7.Utility 8.Bath room 9.L.D.K(22.3帖) 10.Wood deck
2nd Floor / 1.Bed room(7.5帖) 2.Room-1(5.8帖) 3.Room-2(5.8帖) 4.Room-3(5.8帖)5.Free space(6.7帖) 6.Walk in closet 6.DEN

豪雪地帯ならではの工夫で除雪のいらない住宅

雪の多い米沢エリアならではの工夫として、屋根にはヒーターを設置し雪が積もらないようにしており、駐車場にも地下水を活用した融雪システムを設置している。

米沢に映える新しい和モダンテイスト

足を踏み入れた瞬間、ここが街の中だと忘れてしまう42坪のユニテハウス。豪雪地域の米沢の環境に適合したスペックと、次世代のジャパニーズモダンを表現した。

ユニテ スタッフ

ユニテ スタッフの
コメント

中庭のあるようなコの字住宅を箱型で表現
城下町である米沢エリアを意識した和モダン住宅には、和室専用の中庭とダイニングから見える主庭にも和モダンを感じられる作りとした。